287 E 3RD STLowell, OR 97452




Mortgage Calculator
Monthly Payment (Est.)
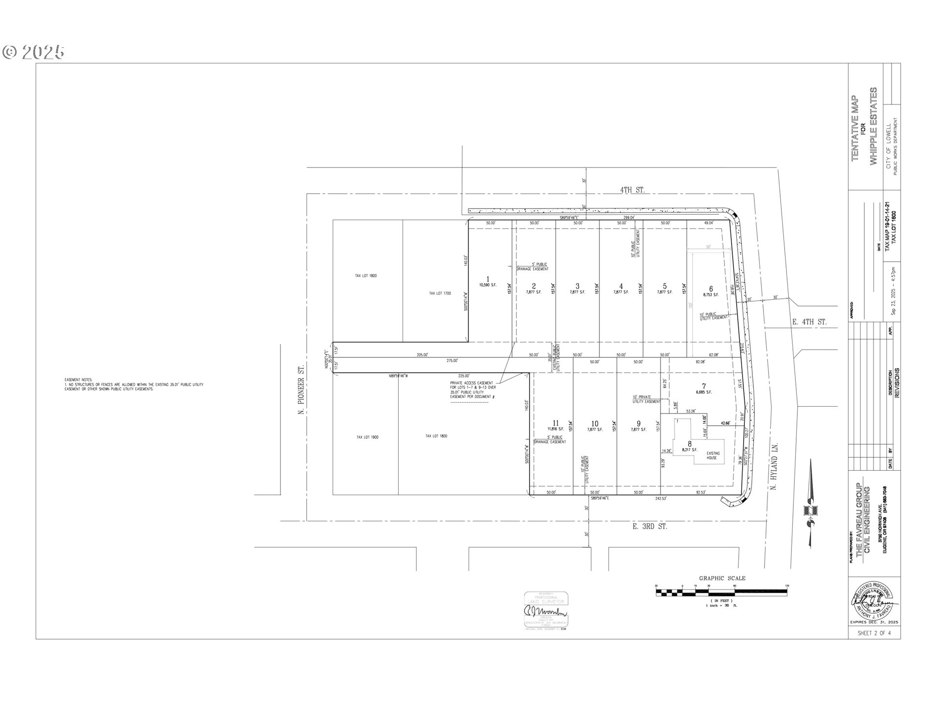
$6,182Exceptional development opportunity in Lowell, just 20 minutes from Eugene. This 2.12-acre parcel includes tentative subdivision approval with the City of Lowell for 11 total lots, offering builders and investors a major head start on a highly desirable small-scale subdivision. The property also includes an existing newly remodeled 2 bedroom home that is currently rented month-to-month, providing income during the development process. The site is largely cleared, utilities are nearby, soils are favorable, and the project aligns with Lowell’s current residential growth needs.This is an ideal opportunity for a builder or developer seeking a manageable, profitable project supported by city momentum. More information regarding pre approval packet with the City of Lowell, engineers concept plans, and city correspondence available. Contact listing agent Jody Spier for details.
| 3 days ago | Listing updated with changes from the MLS® | |
| 4 days ago | Listing first seen on site |
The content relating to real estate for sale on this website comes in part from the IDX program of the RMLS™ of Portland, Oregon. Real estate listings held by brokerage firms other than are marked with the RMLS™ logo, and detailed information about these properties includes the names of the listing brokers. Listing content is Copyright © 2025 RMLS™, Portland, Oregon. Some properties which appear for sale on this website may subsequently have sold or may no longer be available.
Last checked 2025-11-28 10:17 PM PST.
All information provided is deemed reliable but is not guaranteed and should be independently verified


Did you know? You can invite friends and family to your search. They can join your search, rate and discuss listings with you.